
1/4



£230K
Size not specified
£230K
Falcon Court
Size not specified
Development Land in Falcon Court for Sale - £230,000
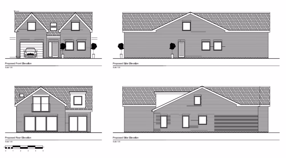
Have you been dreaming of completing your own self build? South facing plot with planning for 3,550 sq ft family home.
Development Land in Falcon Court for Sale - £230,000
Size not specified
development
available
freehold
Description
Have you been dreaming of completing your own self build? South facing plot with planning for 3,550 sq ft family home.
Contact Agent
Moving Works, Longton
Smart Picks — Professionals Relevant to This Land
Based on this property's key features, here are the specialists you may want to consult as part of your due diligence: land agents, rural solicitors and planning consultants.

Land Agents
Essential for navigating the land market, finding buyers, and securing the best price.
Find land agents →

Rural Solicitors
Significant investment (£230K+) requires legal expertise for conveyancing, title checks, and transaction security.
Find rural solicitors →

Planning Consultants
Planning-sensitive site needs expert guidance for applications and development strategy.
Find planning consultants →
Location
Falcon Court